modernisierung ernst-may-haus
das reihenhaus ist teil der ernst-may-siedlung bruchfeldstraße von 1925/26, bekannt auch als »zickzack-hausen«. für die siedlung besteht seit 1995 ein denkmalpflegerischer ensembleschutz, weshalb auch alle innenräumlichen veränderungen genehmigt werden mussten. schutzziel ist hierbei u.a. die sicherung originaler bausubstanz wie z.b. die türzargen, die türgriffe von ferdinand kramer, die frankfurter küche von margarethe schütte-lihotzky oder auch erhaltenswerte bodenbeläge.
| projekt | innenräumliche modernisierung, neue tga |
| leistungsphasen | 3-8 |
| lage | frankfurt-niederrad |
| bauherr | privat |
| projektarchitekt | harald etzemüller |
| mitarbeit | sascha hahner |
| fertigstellung | juli 2015 |
| wohnfläche | 124 qm |
| baukosten | 97.000 € |
| fotocredits | britta hüning fotorismus.de (innenräume) |
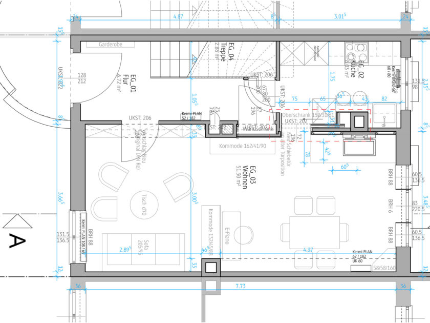
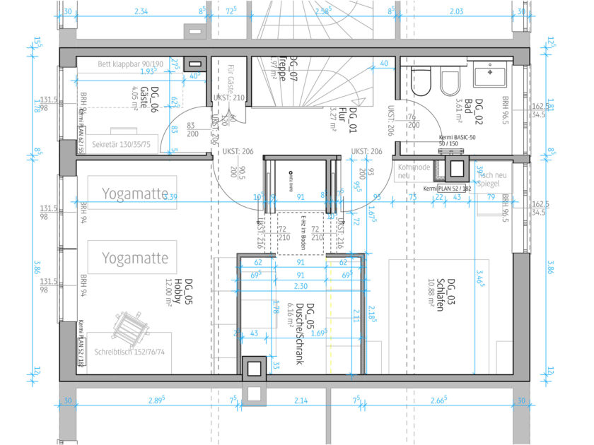
die innenräumliche modernisierung des dreigeschossigen wohnhauses umfasst die modernisierung der haustechnik und des innenausbaus. dabei wird darauf geachtet, soviel wie möglich originale bausubstanz zu erhalten bzw. so wenig wie möglich von der originalen bausubstanz, auch des wandmaterials zu entfernen.
die gesamte haustechnische ausstattung wurde von grund auf erneuert: neue heizungsanlage, neues rohrsystem, heizkörper, neue elektroleitungen und uv-kasten mit serverschrank, neue wasser- und abwasserleitungen. die sanitärobjekte und armaturen orientieren sich stilistisch an zeittypischen einbauten. in küche und bad konnten die originalen cremefarbenen villeroy & boch bodenfliesen im format 15/15 cm freigelegt werden.
im wohnraum wurde unter mehreren schichten noch der originale linoleumbelag identifiziert, er war jedoch nicht erhaltensfähig. die alten bodenbeläge werden entfernt und durch neue ersetzt. größtenteils wurde linoleum eingesetzt werden, vor allem im ober- und dachgeschoss. der flur lebt wieder mit seinem originalen natursteinbelag aus solnhofener platten, im wohnraum wurde ein gewachster eiche-industrieparkett eingebaut. die originalen türzargen blieben erhalten, die alten türblätter – z.t. mit glas – überarbeitet und mit zeittypischen, jedoch nicht originalen türgriffen ergänzt.
die einzige grundrissliche veränderung wurde im dachgeschoss für einen schrankraum und den einbau einer dusche vorgenommen. neben der treppenmodernisierung (aufarbeitung originaler bestand) wurden alle innenwände verspachtelt und mit mineralischen farbanstrichen versehen. ebenso wie die wandfarben gehorchen die bodenmaterialien einem farb- und materialkonzept, welches sich an zeittypischen farbkonzepten der may-siedlungen in frankfurt orientiert. so wird eine innenräumliche wirkung erzielt, die zwar nicht der originalen entspricht, jedoch dem geist der zeit nahekommt.





